ダイアパレス成増Ⅱ
所在地 板橋区成増3丁目32-12
交 通 東武東上線「成増」駅徒歩4分
東京メトロ有楽町線、副都心線
「地下鉄成増」駅徒歩7分
築年月 1995年(平成7年)2月築
総戸数 24戸
規 模 地上5階建て
マンションの特徴
- 開放的な角地に建つマンション
- 災害リスクの低い高台に立地
- 始発ダイヤもある3路線利用可
ポイント
ダイアパレス成増Ⅱは最寄駅が東武東上線「成増駅」徒歩4分にあり、1995年(平成7年)2月に建築された、鉄筋コンクリート造地上5階建、総戸数24戸の新耐震基準施工マンションです。
東京メトロ有楽町線・副都心線「地下鉄成増駅」にも徒歩7分です。エントランスにはオートロックを備えています。
5階建てですがエントランスがB1F表記となり、2階から4階が住戸となっています。
マンション近くには「なります児童館」があり、乳幼児用のバギーや三輪車が楽しめるホールがあるので子育て家庭にも嬉しい環境です。
地図・周辺環境
成増駅北口のロータリーを抜け、ほぼ平坦な道のりでマンションまで歩けます。
南口にある商店街「なりますスキップ村」を通るルートもあります。
地図
周辺環境

MEGAドン・キホーテ成増店
地下鉄成増駅と成増駅に挟まれた成増スキップ商店街の中にあり、都内最大級の店舗。生鮮含む食品をはじめ、日用品、家庭用雑貨、トレンド商品など計約12万点のアイテムが並びます。

成増図書館
東武東上線の成増駅北口ロータリーにあります。同じ建物内には郵便局、ココカラファイン、マクドナルド、ジョナサン、ファミリーマートなどの商業施設があります。

成増ヶ丘小学校
指定学区の小学校。災害リスクの低い台地にあり、周辺には緑や畑など自然が多く残る場所です。
■成増ヶ丘小学校のようす
https://www.city.itabashi.tokyo.jp/kyoikuiinkai/gakko/houmon/1054906/1055684.html
(板橋区ホームページ 学校訪問)
【買物施設】
●リコス成増3丁目店・・・330m
●MEGAドン・キホーテ成増店・・・380m
●西友成増店・・・420m
●EQUIA成増・・・430m
●セブンイレブン・・・200m
●ココカラファイン成増北口店・・・310m
【教育施設】
●ソラスト成増保育園・・・310m
●成増保育園・・・380m
●成増ヶ丘小学校・・・320m
●赤塚第二中学校・・・270m
【病院】
●小林病院・・・480m
●成増駅前内科・循環器内科クリニック・・・480m
【その他】
●区立天神下公園・・・180m
●区立成増児童遊園・・・390m
●区立成増図書館・・・310m
●成増ヶ丘郵便局・・・310m
マンション全体概要
| ●建物名 | ダイアパレス成増Ⅱ(ダイアパレスナリマス2) |
| ●所在地 | 板橋区成増3丁目32-12 |
| ●交通 | 東武東上線「成増」駅徒歩4分 東京メトロ有楽町線「地下鉄成増」駅徒歩7分 東京メトロ副都心線「地下鉄成増」駅徒歩7分 |
| ●築年月 | 1995年(平成7年)2月 |
| ●総戸数 | 24戸 |
| ●構造 | 鉄筋コンクリート造5階建て |
| ●土地権利 | 所有権 |
| ●用途地域 | 第一種中高層住居専用地域 |
| ●分譲会社 | ダイア建設(株) |
| ●施工会社 | 大和建設(株) |
| ●管理会社 | 大和ライフネクスト(株) |
| ●管理形態 | 全部委託 |
| ●管理方式 | 巡回 |
| ●ペット | 飼育可(細則あり) |
共用部分
●オートロック:〇
●宅配ボックス:〇
●エレベーター:〇
●駐車場:〇
●駐輪場:〇
●バイク置場:〇
共用施設
セキュリティ
エントランスはオートロックです。ALSOK綜合警備保障が導入されております。
耐震性
1981年(昭和56年)6月以降の建築確認にて建築されているため「新耐震基準」です。
修繕履歴
平成29年:大規模修繕工事
ハザード情報
▼ダイアパレス成増Ⅱ周辺の浸水想定・液状化・活断層・避難施設の確認はこちら
マンションスライドショー
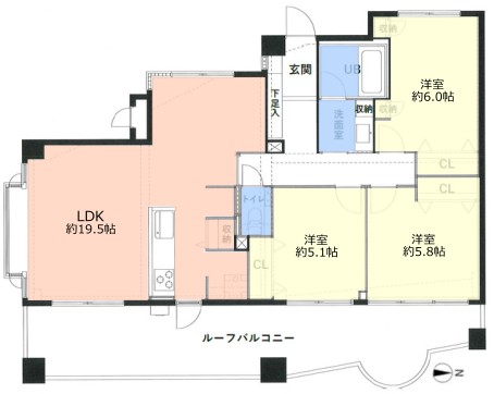
【売買公開中①】4階/3LDK/6,680万円

間取図
担当者コメント
4階部分、東・南・西向き陽当り眺望の良いルーフバルコニー付きの3方角住戸です。内装も水廻りの設備も一新、専有部の給排水管も交換し綺麗になったお部屋ですぐ新生活を始めることができます。
専有面積84㎡以上のファミリー向け3LDK、LDKは3面採光の陽光に包まれる明るい空間です。
ココがポイント
・東・南・西向き3方角住戸
・ルーフバルコニー付き
・約19.5帖の大型LDK
・専有部の給排水管交換済み
・リノベーション物件
リフォーム
壁(一部既存)、天井(一部既存)、床(一部既存)、建具、給湯器、クロス、キッチン、浴室、洗面、トイレ、給排水管(一部既存)(令和7年8月完成)
【販売中】4階 物件概要
| 価格 | 6,680万円 |
| 所在階 | 4階/地上5階建て |
| 専有面積 | 84.75㎡(25.63坪) |
| 間取 | 3LDK |
| ルーフバルコニー | 29.07㎡ |
| 開口部 | 東 |
| 管理費 | 18,900円/月 |
| 修繕積立金 | 30,000円/月 |
| その他 | 駐車場:22,000円/月 駐輪場:1,200円/月 バイク置場:2,000円~10,000円/月 |
| 現況 | 空家 |
| 引渡し | 即時 |
| 取引態様 | 仲介 |
| 特色 | 駐車場、リフォーム、リノベーション、ルーフバルコニー、LDK15帖以上、二階以上、宅配ボックス、エレベータ、新耐震基準マンション、買物便利(徒歩5分以内)、駅から5分以内、スーパー近く(徒歩5分以内)、小学校まで5分以内、オートロック、セキュリティ充実 |
過去の取引事例
【取引事例1】2階/2LDK/4,000~4,500万円(2025年9月成約)
販売価格 4,000~4,500万円
専有面積 50㎡台
間取 2LDK
【室内コンディション】

リノベーション済み

床暖房付きの横長リビング

間取図
担当者コメント
2階、東向き住戸です。
室内リノベーション済みで内装も水廻りの設備も一新。エアコン1台設置済みです。
リビングダイニングは足元から暖かな床暖房があり、家事のサポート役 食器洗浄機、洗濯物を乾かしたり快適なバスタイムを過ごせる浴室乾燥機、追い焚き機能付き。

ダイアパレス成増2のお問い合せは
株式会社ホームリンク
TEL:03-5922-3310
営業時間 AM10:00~PM7:00
定休日 火・水曜日
東京都板橋区上板橋1-1-1
東武東上線「上板橋」駅徒歩7分
















