所在地 板橋区桜川2丁目
最寄駅 東武東上線「上板橋」駅徒歩12分
販売価格 8,799万円(税込み)
構 造 木造3階建て
土地面積 64.37㎡(約19.47坪)
建物面積 113.33㎡(約34.28坪)
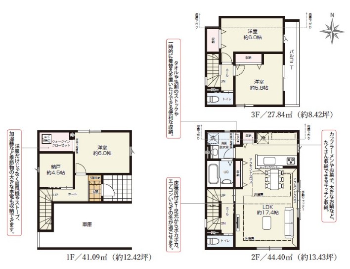
間取り 3LDK+納戸
築 年 月 2026年(令和8年)1月完成予定
ポイント
▢ 最長30年長期サポート可
▢ 第三者保険JIO保険加入
▢ 省エネ性能表示「BELS」取得
桜川小学校、桜川中学校、城北中・高校、そして城北中央公園に囲まれた立地です。
各学校の校庭が広がり開放感があり、城北中央公園の緑も豊かです。春にはあちらこちらに桜が咲いて季節も感じられる環境です。
1宅地の建替えによる新築一戸建て住宅です。2026年1月の完成予定のため新年度からの通学が可能です。
配置図

区画図
間取図

間取図
外観写真
■西側が道路に面しており、道路向かいは城北中・高校です。南側へ進むと城北小学校と中学校、そして城北中央公園があります。
↓↓↓クリックして拡大↓↓↓
地図・周辺環境・ハザード情報
■東武東上線「上板橋」駅より徒歩12分
地図:板橋区桜川2丁目
周辺環境
【買物施設】
●コモディイイダ東新町店・・・720m
●セブンイレブン・・・650m
●トモズ・・・770m
【教育施設】
●東新保育園・・・620m
●桜川小学校・・・280m
●桜川中学校・・・180m
【病院】
●竹川病院・・・340m
●斎藤医院・・・250m
【その他】
●城北中央公園・・・160m
●中央図書館・・・1070m
ハザード情報
▼板橋区桜川2丁目周辺の浸水想定・液状化・活断層・避難施設の確認はこちら
物件概要
| 価格 | 8,799万円(税込) |
| 所在地 | 板橋区桜川2丁目 |
| 交通 | 東武東上線「上板橋」駅より徒歩12分 |
| 土地権利 | 所有権 |
| 土地面積 | 公簿 64.37㎡(約19.47坪) |
| 他私道負担面積 | - |
| 地目 | 宅地 |
| 接面道路 | 東側 公道約5.9m |
| セットバック | - |
| 構造 | 木造3階建て |
| 建物面積 | 113.33㎡(約34.28㎡) (1階:41.09㎡、2階:44.40㎡、3階:27.84㎡)車庫部分15.83㎡含む |
| カースペース | あり |
| 建築年月 | 2026年(令和8年)1月完成予定 建築確認番号:第KBI-YKH25-10-2084号 |
| 間取り | 3LDK+納戸 |
| 建ぺい率/容積率 | 70% / 200% |
| 都市計画/用途地域 | 市街化区域/第一種中高層住居専用地域 |
| 水道/ガス/排水 | 公営水道/都市ガス/本下水 |
| 現況 | 建築中 |
| 引渡し | 2026年1月中旬 |
| 取引態様 | 仲介 |
| 備考 | |
| 特色 | 都市ガス、小学校近く(徒歩5分以内)、病院近く(徒歩5分以内)、公園近く(徒歩5分以内)、フラット35S、LDK15帖以上、システムキッチン、対面(カウンター)キッチン、パントリー(収納庫)、全居室収納、駐車場、食器洗乾燥機、床暖房、3階建て、ウォークインクローゼット、浴室換気乾燥機、整形地、トイレ2か所 |

桜川2丁目新築戸建のお問い合せは
株式会社ホームリンク
TEL:03-5922-3310
東京都板橋区上板橋1-1-1
東武東上線「上板橋」駅徒歩7分
営業時間 AM10:00~PM7:00
定休日 火・水曜日









